| CASA PITANGUEIRA |


Local: Piracicaba, SP

Início do projeto: 2011

Conclusão da obra: 2013

Área do terreno: 1.112,55m²

Área construída: 685,19m²

Arquitetura: Maria Jocelei Steck

Projeto luminotécnico: interluz iluminação campinas

Fotografia: Tacito de Carvalho

 

O generoso terreno de 1.112 m² da Casa Pitangueira mistura estilos. Com o objetivo de integrar os ambientes, ela foi concebida pelo escritório Steck Arquitetura a partir da implantação de tecnologias modernas e da combinação com a paisagem naturalista, típica da cidade de Piracicaba, interior de São Paulo.

“A residência é alegre e ensolarada, com áreas flexíveis, além de possuir grandes vãos que unem os espaços”, conta a arquiteta Maria Jocelei Steck, ressaltando, ainda, a importância de valorizar a concepção de um projeto completo, desde a arquitetura até o design de interiores.

| Design harmonioso

A fachada principal dá acesso à entrada do imóvel e apresenta planos e volumes cegos ou minimamente vazados, que permitem a transição entre a casa e a rua. Além de receber iluminação artificial durante a noite, configurando um jogo de luz e sombra, a composição frontal ganha destaque pela empena cega revestida com cerâmica do artista plástico pernambucano Francisco Brennand.

Devido às janelas de abrir e correr, a fachada apresenta movimento e dinâmica de acordo com o grau escolhido de fechamento ou abertura das aletas. Assim, é possível deixar o vão total ou parcialmente livre, além de formar novas visões dentro e fora da residência.

 

| Integração e acessibilidade

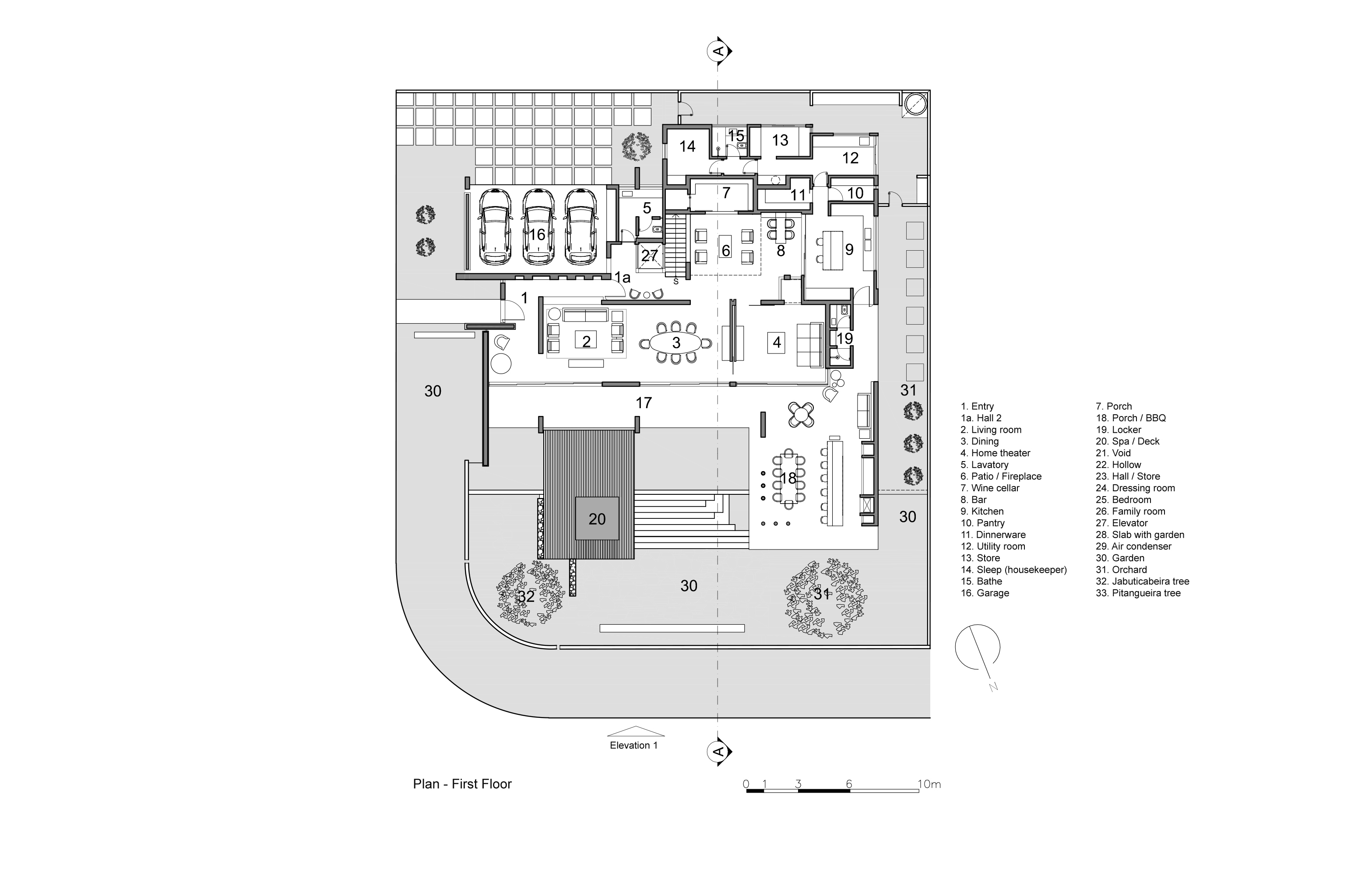
A distribuição dos espaços fica por conta do hall de entrada, que ora conduz às áreas de convivência e lazer amplamente integradas, como as salas de estar, jantar e o espaço gourmet; ora ao hall mais reservado, por meio da escada-passeio ou mesmo do elevador.

 

| Charme do pátio central

Com pé-direito duplo, piso de ladrilho hidráulico patchwork e jardim vertical, o aconchegante espaço é um ponto de encontro entre as pessoas. Serve também como um lugar de fluidez, já que ao fundo dispõe de uma adega – climatizada e revestida de madeira de demolição – e, do outro lado, bar, home theater e cozinha, perfeitamente integrados pelas portas de correr.

 

| Automação e materiais

“Outro elemento importante na composição do pátio central deve-se à moderna cobertura móvel feita de aço corten e vidro automatizado, que proporciona a total abertura do teto e a contemplação do exterior”, acrescenta a arquiteta Maria Steck, destacando um dos diferenciais do projeto.

 

| Ventilação e luz naturais

Ideal para descanso e conforto dos moradores e convidados, a Casa Pitangueira aproveita ao máximo a incidência de luz e ventilação naturais. Para isso, segundo a arquiteta, foram estabelecidos dois conceitos que nortearam o projeto – evanescência e luminescência.

O primeiro baseia-se na transitoriedade de luz e sombra, que varia de acordo com as horas do dia, gerando novos cenários e percepções a cada momento. “Por meio das aletas móveis e independentes, instaladas nas venezianas de madeira, é possível escolher a quantidade de exposição solar ou uma maior privacidade. Elas também facilitam o controle da ventilação natural”, exemplifica Steck.

O segundo conceito trabalha com um material sensível aos raios solares, capaz de transmitir luminosidade ao ser estimulado. Aplicado no fechamento da janela localizada no andar superior, em um nicho de descanso, o brilho amarelado destaca o caminho e oferece a sensação de conforto.